Hlava nechápe, že mlýn je bez vody.
(ukrajinské přísloví)

Vonšovský mlýn

Vonšovský mlýn
32
29
Starý Mlýn
Mariánské Lázně
35301
Cheb
Valy u Mariánských Lázní
49° 58' 27.9'', 12° 38' 47.7''
Mlýniště bez mlýna
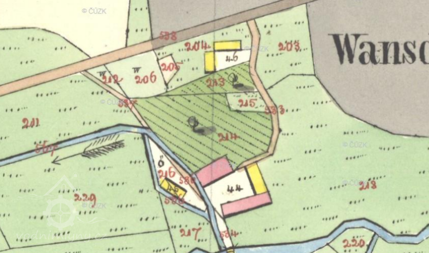
Objekt tzv. Vonšovského mlýna (Wonschamühle), zmiňovaného poprvé roku 1782 v příloze válečné mapy císaře Josefa II., se nachází západně od obce Valy (Alte Schanz) na hranici dvou pohoří v Kynžvartském pasu.
Kosí potok
nepřístupný

Historie mlýna obsahuje událost z období:

1782 - poprvé zmiňován v příloze mapy I. vojenského mapování

1841 - Franz Gerstner

Události
  • První písemná zmínka o existenci vodního díla
  • Vznik mlynářské živnosti

1930 - František Loib

1945 - Lorenz Loib

Před rokem 1981 mlýn rozebrán a materiál odvezen.

Události
  • Zánik budovy mlýna

1996 - postaveny nové budovy na starých základech, bez vazby na původní architekturu. Založena společnost Vonšovský mlýn, s.r.o.

2007 - vypracován projekt na vybudování nového ubytovacího zařízení, které se mělo zvenčí podobat původnímu historickému objektu. K realizaci dosud nedošlo, pouze byly zbourány nové budovy. V současné době je společnost v likvidaci.

Příjmení mlynářů působících na mlýně:

  • Gerstner
  • Loib

Historie mlýna také obsahuje:

Mlýn je vyobrazen na:

Předměty spojené s osobou mlynáře a provozu:

    neexistuje
    08 2019
      venkovský
      mlýn na potoku (50 - 1000 l/s)
        zděná
        Původní mlýn na potoku Vonše (Kosí p.) měl původně, dnes již vyřazený, náhon o průtoku 0,095m3/s. Osazen byl jedním kolem se spádem 2,8m o výkonu 2,3 ks. S velkou pravděpodobností byla původní stavba horskou odnoží francko-švábského domu v půdorysné konfiguraci „franckého“ dvorce nebo vzhledem k blízkému sousedství Karlovarska tzv."Vierseithofu" tj. dvorce volně vestavěného do krajiny a uzavřeného ze všech čtyřech stran. V blízkém okolí se střetává tepelská a chebská oblast, kde se v první nachází roubené stavby s tzv. podkrovním roubeným věncem a prkenným štítem – lomenicí, zatímco v druhé převážně vyspělé hrázděné-rámové patrové stavby se štíty domů s hustě kladeným šachováním, které byly vystavěné převážně na přelomu 18-19. století (1790-1820).
            • zcela bez technologie aj.
            Žádná položka není vyplněna
            Zaniklý
            • pila
            Na Indikační skice vyznačena pila.
            • náhon
            Typvodní kolo na vrchní vodu
            StavZaniklý
            Popis1930 - 1 kolo na svrchní vodu, průtok 0,095 m3/s, spád 2,8 m, výkon 2,3 HP.
            Typvodní kolo na vrchní vodu
            StavZaniklý
            Popis1930 - 1 kolo na svrchní vodu, průtok 0,095 m3/s, spád 2,8 m, výkon 2,3 HP.
            Žádná položka není vyplněna
            Historické technologické prvky
            AutorMarek Topič
            NázevVonšovský mlýn. Stavební úpravy a adaptace objektu na ubytovací zařízení
            Rok vydání2007
            Odkazhttps://www.marektopic.cz/cze/detail/111
            AutorMarek Topič
            NázevVonšovský mlýn. Stavební úpravy a adaptace objektu na ubytovací zařízení
            Rok vydání2007
            Odkazhttps://www.marektopic.cz/cze/detail/111
            AutorMístopisný průvodce po České republice
            NázevValy
            Odkazhttps://www.mistopisy.cz/pruvodce/obec/129/valy/pamatky-turistika/?pdf
            AutorMinisterstvo financí
            NázevSeznam a mapa vodních děl Republiky československé
            Rok vydání1932
            Další upřesněníCheb, str. 27
            AutorIng. Richard Švandrlík
            NázevHamelika. Vesnice a okolí.
            Odkazhttps://www.hamelika.cz/

            Žádná položka není vyplněna

            Historické mapy

            Historické fotografie a pohlednice

            Současné fotografie - vodní dílo

            Vytvořeno

            29.5.2021 21:37 uživatelem Ringo (Vladimír Forejt)

            Majitel nemovitosti

            Není vyplněn

            Spoluautoři

            Uživatel Poslední změna
            Rudolf (Rudolf Šimek) 3.6.2021 20:56