Mlynář, který není zaprášený, kněz, který nevěří,
lakomec bez peněz jsou tři zvláštní věci na světě.
(německé přísloví)

Dolní, Konečných, Žilkův mlýn; Untere Mühle

Dolní, Konečných, Žilkův mlýn; Untere Mühle
74
Bělá
798 52
Prostějov
Kladky
49° 37' 40.9'', 16° 49' 3.7''
Mlýn bez funkčního vodního motoru
Patrová budova mlýna ze 16. století pod osadou Bělá u Kladek. Mlýn byl napájen z potoka Bělá a potoka Nectava. Obytné stavení zaniklo až na torza zdí, zůstala stodola a také budova pily. Mlýn byl označen jako dolní, nad ním stával druhý mlýn, který zanikl zcela.
V dolní části osady Bělá, na hranici katastru Kladky u silnice z Konice do Jevíčka
Nectava
přístupný po domluvě

Obecná historie:

Seznam majitelů mlýna 1 Martin Mlynář 2 14.9. 1645 18 Jan Čermák, dcera Běla 3 3.3. 1663 7 Vávra Vlaštovička 4 20.3. 1670 6 Simeon Mieler 5 11.3. 1676 27 Matouš Konečný – Šimka Kvapila 6 28.12. 1703 27 Jiří Konečný, syn Matouše K. 7 29.11. 1731 38 Václav Konečný, syn Jiřího K. 8 1.6. 1769 19 Antonín Novák, přiženil se k vdově Barboře po Václavu K. 9 22.6. 1778 30 Jan Matyáš Konečný, syn Václava K. 10 18.6. 1808 3m Tomáš Konečný, syn Matyáše K. Stavba nového mlýna 11 30.9. 1808 3 Bartoloměj Sekanina 12 3.10. 1811 36 Jan a Kateřina Konečný 13 15.6. 1837 2 Johan Konečný, syn Jana K. 14 20.9. 1839 26 Antonín a Viktorie Konečný, (kup od bratra Jana K.) 15 30.1. 1864 10 Antonín a Pavlíka Konečný 16 20.9. 1876 7 Pavlina Konečná, po krizi (kvici?) po manželovi, 3.1.1883 uznán za marnotratníka 17 28.4. 1883 16 Hynek a Mariane Kraus 18 12.7. 1899 22 Vilém a Marta Žilka 19 2.5. 1921 14 Ludvík a Anna Žilka 20 1.2. 1935 20 Anna Žilková, vdova provdaná za Rudolfa Trbuška 21 4.8. 1955 50 Jaroslav Žilka, syn po Ludvíku Žilkovi 22 2005? Jaromír, Jaroslav a Ludvík Žilka, synové Jaroslava Ž. 23 2010 Jaromír Lenoch, Martina Bednářová


Historie mlýna obsahuje událost z období:

Události
  • První písemná zmínka o existenci vodního díla
  • Vznik mlynářské živnosti

1930 Ludvík Žilka

Události
  • První písemná zmínka o existenci vodního díla
  • Vznik mlynářské živnosti
Hospodářský typ mlýna
Námezdní

Příjmení mlynářů působících na mlýně:

  • Mlynář
  • Čermák
  • Vlaštovička
  • Mieler
  • Konečný
  • Novák
  • Kraus
  • Žilka

Historie mlýna také obsahuje:


Zobrazit více

Mlýn je vyobrazen na:

Předměty spojené s osobou mlynáře a provozu:

    dochován bez větších přestaveb
    05 2012
      venkovský
      mlýn na potoku (50 - 1000 l/s)
      mlýnice a dům samostatné budovy
      • baroko do roku 1800
      zděná
      jednopatrový
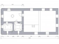
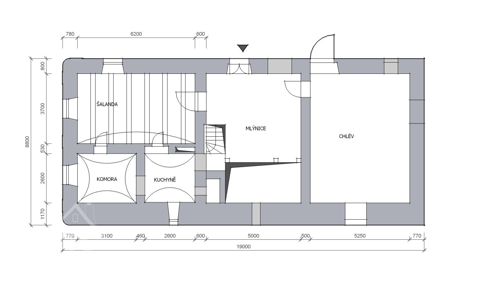
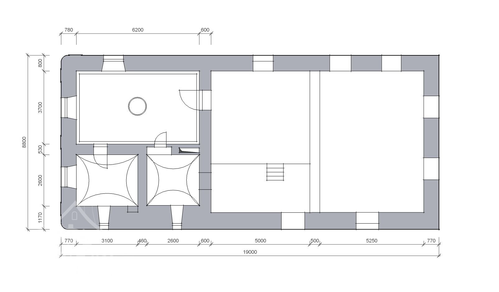
      Budova mlýna má třítraktovou dispozici s mlýnicí uprostřed, vpředu šalanda a dvě místnosti, v zadní části novodobější chlév. V patře obytná dispozice kopírující spodní podlaží, prostor mlýnice a nad chlévem propojen a otevřen. Celková podoba mlýna pozdně barokní. Střecha počátkem 20.století upravena a excentricky umístěný štít ubourán. Třetina mlýna podsklepena dvouprostorovým kamenným klenutým sklepem. Většina konstrukcí cihlová, starší části kamenné.
      Stodola pilířová se sedlovou střechou. Původní obytné křídlo z nepálených cihel. Pila dřevěná s kamennou čelní stěnou.
      • plastická omítková výzdoba fasád a štítů
      • kamenické prvky barokní a mladší
      • okno
      • epigrafické památky (nápisy, datování aj.)
      • tesařsky zdobené podpůrné sloupy
      • trámový strop
      • omítané stropy s plastickou výzdobou
      • klenba
      • černá kuchyně
      • dveře
      • existující torzo obyčejného složení
      Zbytek hřídele s polovinou palečního kola a transmise.
      Žádná položka není vyplněna
      Základy pro motor pily, vnitřní část hřídele kola a polovina palečnicového kola.
      Dochovaný
      • pila
      Pila druhotně upravena na elektrický pohon, v příležitostném provozu do 1990, později rozkradena a zařízení likvidováno.
      • náhon
      • vantroky
      • jalový žlab
      • normální znamení
      • rybník
      • akumulační nádržka
      • odtokový kanál
      • lednice
      Mlýn byl zásobován ze dvou zdrojů. Jedním byl rybník na Bělé, zásobující přednostně horní mlýn, dnes vyschlý a nahrazený rybníkem výš na toku. Nad mlýnem zásobovací nádržka. Do ní přitékala voda z rybníka zásobovaného z Nectavy, náhon pokračoval pod cestou k mlýnu. Vantroky byl veden ke kolu mlýna a pily, jalovým náhonem pak zpět do Nectavy.
      Typvodní kolo na vrchní vodu
      StavZaniklý
      Výrobce
      Popis1930: 1 kolo na svrchní vodu, hltnost 0,077 m3/s, spád 6,4 m, výkon 4,2 m
      Mlýnské zařízení prošlo topným systémem domu. Vodní kolo existovalo ještě v roce 1960., lednice dnes zasypána.
      Typvodní kolo na vrchní vodu
      StavZaniklý
      Výrobce
      Popis1930: 1 kolo na svrchní vodu, hltnost 0,077 m3/s, spád 6,4 m, výkon 4,2 m
      Mlýnské zařízení prošlo topným systémem domu. Vodní kolo existovalo ještě v roce 1960., lednice dnes zasypána.
      Typelektrický motor
      StavZaniklý
      Výrobce
      PopisOdstraněn, pro pilu.
      Typelektrický motor
      StavZaniklý
      Výrobce
      PopisOdstraněn, pro pilu.
      Historické technologické prvky
      • pískovcový kámen | Počet:
      • jiný přírodní kámen | Počet:
      • AutorMinisterstvo financí
        NázevSeznam a mapa vodních děl Republiky československé
        Rok vydání1932
        Místo vydáníPraha
        Další upřesněnísešit 13 (Brno), s. 14
        AutorMinisterstvo financí
        NázevSeznam a mapa vodních děl Republiky československé
        Rok vydání1932
        Místo vydáníPraha
        Další upřesněnísešit 13 (Brno), s. 14

        Místo uložení
        Název fondu
        Název archiválie
        Evidenční jednotka
        Inventární číslo, signatura
        Místo uložení
        Název fondu
        Název archiválie
        Evidenční jednotka
        Inventární číslo, signatura

        Informace poskytl bývalý spolumajitel p.Jaromír Žilka z Konice

        Základní obrázky

        Historické mapy

        Plány - stavební a konstrukční

        Historické fotografie a pohlednice

        Současné fotografie - exteriér

        Současné fotografie - exteriér - detaily stavebních prvků

        Současné fotografie - interiér

        Současné fotografie - interiér - detaily stavebních prvků

        Ostatní

        Vytvořeno

        25.9.2012 21:43 uživatelem Jaromír Lenoch

        Majitel nemovitosti

        Není vyplněn

        Spoluautoři

        Uživatel Poslední změna
        Rudolf (Rudolf Šimek) 5.4.2017 09:17
        doxa (Jan Škoda) 8.3.2023 00:35