Není ještě na mlýně, co má být na Velikonoce semleto.
(německé přísloví)

Strojní mlýn

Strojní mlýn
421
155, 110
Karlovice
793 23
Bruntál
Karlovice ve Slezsku
50° 6' 19.0'', 17° 26' 49.5''
Mlýn bez funkčního vodního motoru
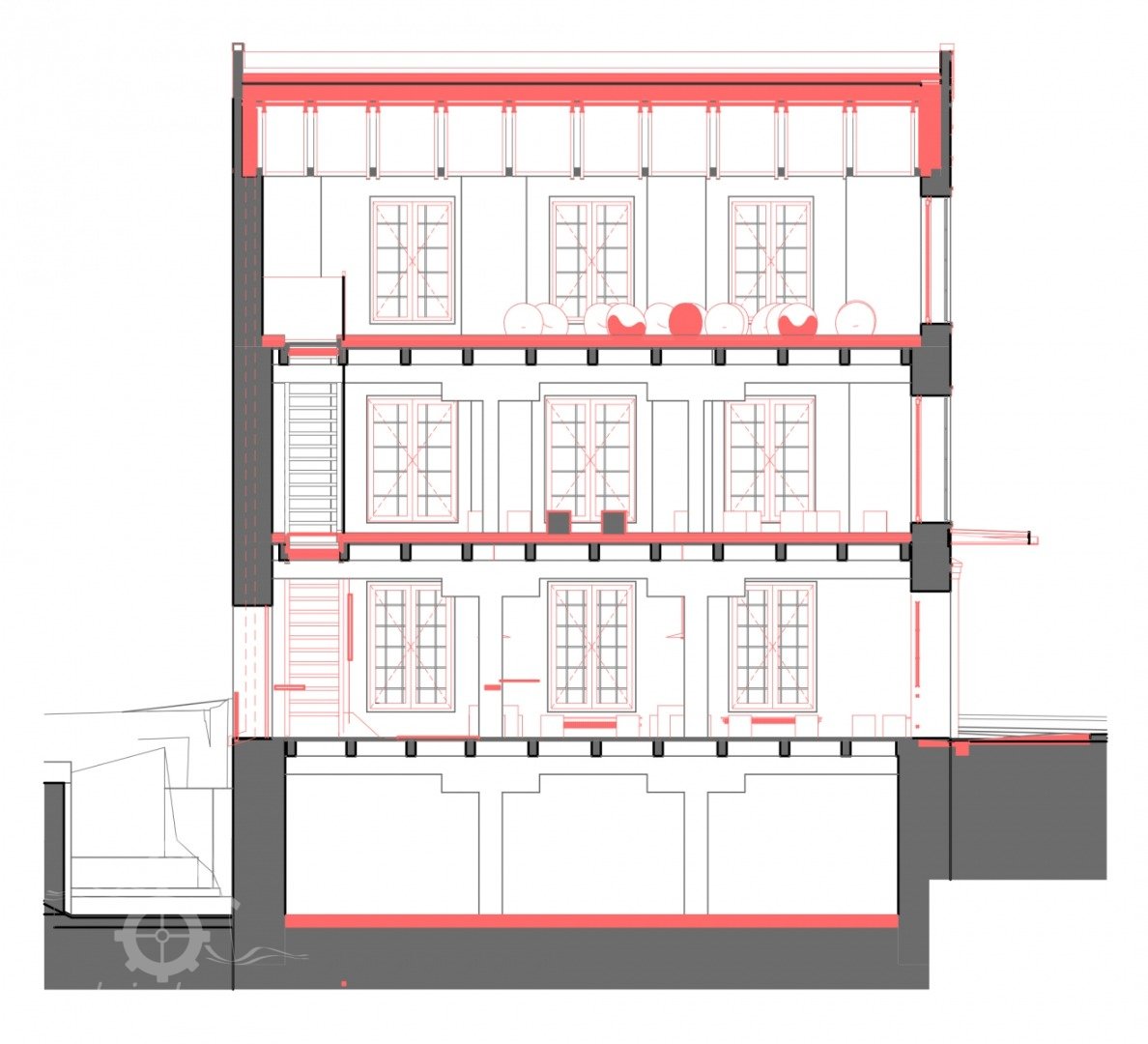
Strojní mlýn byl v Karlovicích postaven ve 30. letech 20. století na místě vyhořelého dřevěného mlýna čp. 155. Byl poháněn Francisovou turbínou. Jedná se o třípodlažní podsklepenou technickou budovu se zachovalými továrními okny. Mlýn je zcela bez zařízení, vnitřní dřevěné konstrukce jsou zachované, turbína je umístěna v sousední budově Muzeum Kosárna. Mlýn je rekonstruován pro edukační centrum.
centrum obce
Opava
38652 / 8-116 (kosárna)
přístupný po domluvě

Historie mlýna obsahuje událost z období:

26.1.1747 koupil Baltazar Schaffer za 5 800 zl. rýn. Odvádí 100 zl. mlýnské činže (o sv. Janu Křt. a na Vánoce po 50 zl.) a 96 šeflů žita.

12.6. 1754 prodal mlýn s přilehlými pozemky Antonínu Schafferovi za 2 000 tol. sl. (1200 tol. závdavek, 50 tol. roč. splátka), po jeho smrti v roce 1778 prodala vdova mlýn svému otci Františku Langerovi. V roce 1830 a 1836 mlýn vlastní Joseph Langer, v roce 1845 Josepha Langer.

Události
  • První písemná zmínka o existenci vodního díla
  • Vznik mlynářské živnosti

Do roku 1879 mlýn vlastní Josepha Langer. V roce 1880, 1890 a 1900 mlýn vlastní mlynář Anton Frank nar. 1843, manželka Rosa nar. 1962.

 V roce 1921 vlastní mlýn vdova Rosa Frank nar. 1862, synové Josef a Wilhelm.

 Současná budova byla vystavěna ve 30. letech 20. stol po ničivém požáru starého mlýna čp. 155, v té době mlýn získal čp. 110, jako objekt přináležející ke staré kosárně. Frankovi sjednotili náhon, dříve tam byly vedle sebe dva náhony, (pro pilu a pro mlýn) a v roce 1935 využili nejmodernější technologii a postavili nový stroní mlýn, který stojí dosud. Turbína, která tam byla a poháněla strojní mlýn, poháněla zároveň i výrobu kolejnic a později pilu, která stála za mlýnem, vedle kosárny. Objekt kosárny byl postaven v roce 1600, jak dokládá nápis na střešním kabřinci. Do dnešní podoby byl objekt kosárny přestavěn v roce 1759. V období 1645–1725 patřil do majetku knížecí Horní komory hamerní hutě. Protože výroba železa v hamrech zaostávala hamry byly zrušeny a objekt koupil Jan Michal Hartel. Tento kosař objekt zvětšil a vyráběl kosy, srpy, zemědělské nářadí a drát. V roce 1812 byla prodána Janu Heinrichovi a v roce 1845 převedena do vlastnictví mlynářky sousedního mlýna Josefě Langrové. Od roku 1898 vlastnil kosárnu mlynář Anton Frank, který objekt pronajímal, poté jeho syn Vilém Frank. V majetku mlynářů zůstala až do roku 1945, kdy byla kosárna přidělena Josefu a Jarmile Pelánovým. V roce 1974 byla kosárna pro rekreační účely zakoupena bruntálským Okresním vlastivědným muzeem. Od roku 1992 slouží jako muzeum.

V roce 1929 získal Vilém Frank, coby majitel domu čp. 110 (kosárna) koncesi na výrobu a distribuci el. energie, proudu stejnosměrného až do výkonu 17 kW.

V roce 1930 vlastní mlýn a pilu Vilém Frank.

Události
  • Zaznamenání katastrofy (požár, povodeň, zranění, úmrtí, aj.)
  • Zánik budovy mlýna
Události
  • Zánik mlynářské živnosti

Mlýn byl v roce 2021 zrekonstruován a sídlí v něm edukační centrum - VÍCE Ve mlýně Karlovice -.
 

Příjmení mlynářů působících na mlýně:

  • Schaffer
  • Langer
  • Frank

Historie mlýna také obsahuje:

1747 - 1754 Baltazar Schaffer

1754 - Antonín Schaffer

1778, 1793 - Franz Langer

1830, 1836 - Joseph Langer

1843 - 1879 - Josepha Langer

1880, 1890, 1900 - Anton Frank

1921 - vdova Rosa Frank

1930 - Vilém Frank

Mlýn je vyobrazen na:

Předměty spojené s osobou mlynáře a provozu:

    dochován bez větších přestaveb
    05 2012
      venkovský
      mlýn na malé řece (1000 – 7000 l/s)
      mlýnice bez obytné budovy
      • moderní 1920 – 1945
      zděná
      vícepodlažní
      Původní mlýn byla částečně zděná a částečně roubená budova s vysokou střechou krytou šindelem, obsahující jak mlýnskou tak obytnou část.

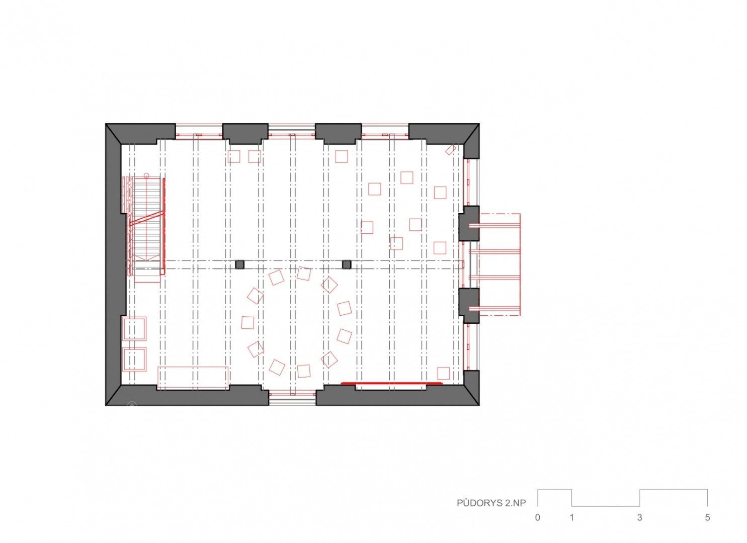
      Současná budova mlýna se svou architekturou vymyká typické venkovské zástavbě. Jde o třípodlažní budovu, bez obytné části, která měla původně plochou střechu ukloněnou na jednu stranu (není zachována). Budova je opatřena velkými továrními okny. Budova je podsklepená.
      • plastická omítková výzdoba fasád a štítů
      • dveře
      • okno
      • schodiště
      • prostup pro hřídel vodního kola
      • drobné sakrální památky
      • trámový strop
      • krov
      • schodiště
      • zcela bez technologie aj.
      Francisova turbína, která mlýn poháněla, byla umístěna v náhonu za budovou, přenášela pohyb na hřídel ve sklepě, kde jsou dosud zachovány masivní betonové sokly. Strojní zařízení bylo umístěno v 1. podlaží. Násypníky procházely stropem do vyšších podlaží. Strojní zařízení mlýna se nedochovalo.
      Žádná položka není vyplněna
      Zaniklý
      • pila
      • kovoobráběcí dílna
      1930 mlýn a pila
      výroba kolejnic, kosárna
      • náhon
      Náhon vede z řeky Opavy a prochází celou obcí, kde se dělí na dvě větve. Ty se opět spojují, ústí do říčky Kobylka a ta se vlévá do Opavy na dolním konci obce. Na náhonu pracovaly hamry, pily, papírna, bělidla. Byl pravidelně udržován, čištěn. Existují jeho přesné technické nákresy z roku 1935, včetně délky a spádu. V současné době je neudržován, je zanesený a je celkově zvednutý (od odsunu Němců z oblasti byl čištěn jen sporadicky). Asi 100 m pod mlýnem byl zatrubněn pod silnicí (v délce 10 m), byl vyzvednut a nad zatrubněním se zanáší.
      1935 dva původní náhony sjednoceny
      Typturbína Francisova
      StavDochovaný
      PopisTurbína je umístěna v Muzeu Kosárna v sousedství mlýna.
      1930: 1 turbína Francis, hltnost 0,87 m3/s, spád 2,5 m, výkon 23,2 HP
      Typturbína Francisova
      StavDochovaný
      PopisTurbína je umístěna v Muzeu Kosárna v sousedství mlýna.
      1930: 1 turbína Francis, hltnost 0,87 m3/s, spád 2,5 m, výkon 23,2 HP
      Žádná položka není vyplněna
      Historické technologické prvky
      AutorMinisterstvo financí
      NázevSeznam a mapa vodních děl Republiky československé
      Rok vydání1932
      Místo vydáníPraha
      Další upřesněnísešit 19 (Cukmantl), s. 21
      AutorMinisterstvo financí
      NázevSeznam a mapa vodních děl Republiky československé
      Rok vydání1932
      Místo vydáníPraha
      Další upřesněnísešit 19 (Cukmantl), s. 21
      AutorPavel Solnický
      NázevVodní mlýny na Moravě a ve Slezsku I. díl
      Rok vydání2007
      Místo vydáníPraha
      Další upřesněnís. 61-62
      AutorVelkostatek Krnov
      NázevDigitální archiv Zemského archivu v Opavě
      Rok vydání1733 - 1836, 1740 - 1881
      Místo vydáníinternet
      Další upřesněnígruntovní a hlavní kniha pro obec Karlovice
      Odkazhttps://digi.archives.cz/da/vysledekList?page=29
      Datum citace internetového zdroje13.11. 2025
      AutorOkresní úřad Bruntál
      NázevDigitální archiv Zemského archivu v Opavě
      Rok vydání1880 - 1821
      Místo vydáníinternet
      Další upřesněníArchy sčítání obyvatel
      Odkazhttps://digi.archives.cz/da/vysledekList?page=29
      Datum citace internetového zdroje13.11. 2025
      Autorviz wikipedie
      NázevKosárna Karlovice
      Rok vydání2025
      Místo vydáníinternet
      Odkazhttps://cs.wikipedia.org/wiki/Kosárna_(Karlovice)
      Datum citace internetového zdroje13.11. 2025

      Žádná položka není vyplněna

      Základní obrázky

      Historické mapy

      Plány - stavební a konstrukční

      Historické fotografie a pohlednice

      Současné fotografie - exteriér

      Současné fotografie - exteriér - detaily stavebních prvků

      Současné fotografie - interiér

      Současné fotografie - interiér - detaily stavebních prvků

      Současné fotografie - vodní dílo

      Současné fotografie - technologické vybavení

      Ostatní

      Vytvořeno

      16.5.2014 15:24 uživatelem mlýn Karlovice

      Majitel nemovitosti

      Není vyplněn

      Spoluautoři

      Uživatel Poslední změna
      Rudolf (Rudolf Šimek) 21.3.2017 20:10
      dedeon 17.11.2015 14:59
      REAPERXCX 15.11.2025 02:23
      doxa (Jan Škoda) 22.5.2024 17:29